Energieeffizienz

Wärmepumpen Pre-Check

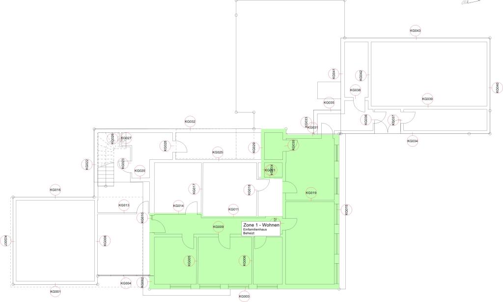
- Heizlastermittlung nach DIN EN 12831 und DIN/TS 12831 (Fördervoraussetzung), visuelle Gebäudeerfassung mit Heizlastermittlung auf Raum-, Wohnungs-, und Gebäudeebene

- Beantragung Heizungsförderung (BzA – KFW) https://www.kfw.de/inlandsfoerderung/Heizungsf%C3%B6rderung/
- Erstellung individueller Sanierungsfahrplan (iSFP) – BAFA EBW https://www.bafa.de/DE/Energie/Energieberatung/Energieberatung_Wohngebaeude/energieberatung_wohngebaeude_node.html
- Energieberatung DIN V 18599 (BAFA Modul 2- EBN) https://www.bafa.de/DE/Energie/Energieberatung/Nichtwohngebaeude_Anlagen_Systeme/nichtwohngebaeude_anlagen_systeme_node.html
- Fachplanung BEG Einzelmaßnahme und Effizienzgebäude (KFW)
- detaillierte Wärmebrückenberechnung
- Baubegleitung gemäß Richtlinie zur Bundesförderung für effiziente Gebäude (BEG)

- Fördermittelberatung KFW und BAFA
- Energieausweise für Wohn- und Nichtwohngebäude (Gewerbe)
- LCA-Bilanzierung nach QNG – Wohngebäude in den KFW Programmen 297, 297 und 300
Gebäudeplanung

- Kostenplanung (Kostenschätzung, Kostenberechnung)
- Leistungsbeschreibung mit Leistungsverzeichnis oder Leistungsprogramm
- Ausschreibung,Vergabe, Abrechnung (AVA)
- Bauüberwachung, Bauleitung (öffentlich-rechtlich, Bauleitende gemäß § 56 BauO NRW)
Weitergehende Leistungen auf Anfrage

Du muss angemeldet sein, um einen Kommentar zu veröffentlichen.